联系我们
24小时服务热线:
158-5106-6698
公司电话:0515-88404040
公司传真:0515-88410418
客服QQ:348083717
地址:盐城市城南新区新都街道中南世纪城一期2B2-414--417室
隧道防水构造及做法要点详解-涌达建工漏公司友情分享【收藏版】
发布时间:2023-05-15
来源:涌达建工 浏览次数:21626
隧道防水工程是一项涉及到工程学、密封学、地质学等众多学科的系统工程项目,原则应紧密结合工程地质、水文地质条件、工程结构特点,修建方法、工程用途及使用要求。防水设计及施工需做到以下几点:
1、设计遵循“防、排、堵、截相结合”的综合治理原则。采取多种措施,力求达到排水通畅、防水可靠、经济合理、不留后患的目的,实现防水目的;
2、防水设计总原则应以防为主,多道设防、防水结合、综合治理;
3、隧道衬砌结构可采用自防水混凝土,将其视为治本的项目和永久防水线,做到不渗不漏。施工中需采取有效措施,防止结构产生贯穿型裂缝;
4、对变形缝一定要根据工程本身特点及使用要求合理设置,对施工缝的设置则根据施工条件具体研究确定。为消除混凝土大部分收缩应力,施工缝设置宜密不宜疏,对变形缝、施工缝及穿墙管等特殊部位防水要采取加强措施;
5、隧道防水板施工工艺要保证防水层具有连接整体密封性;
6、如隧道进、出口浅埋段较长,覆盖层多为松散体,地表具有汇水地形等特点,可在洞顶设置截水天沟,地表局部注浆,并对洞顶平面一定范围进行封闭,防止地表水下渗。
总的来说,隧道防水工程可从以下几个方面着手。
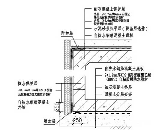
【混凝土结构自防水】
混凝土结构自防水的关键是施工时必须确保混凝土密实及控制混凝土不产生裂缝。普通防水混凝土存在收缩开裂,而补偿收缩混凝土很好的解决了这个问题,它是 在水泥中掺入膨胀剂或采用膨胀水泥拌制而成。常用的外加剂有防裂型FS防水剂、U型膨胀剂等。实践证明,掺入外加剂可以达到比较理想的抗裂、防渗效果。
【附加防水层】
隧道工程多在迎水面设置防水水泥砂浆防水层、卷材防水层或涂料防水层等,其目的是补偿增强结构自防水,作为一道重要的防水线。
【变形缝、施工缝的处理】
1、变形缝的处理。变形缝应满足密封防水、适应变形、施工方便等要求。变形缝止水带通常有嵌缝式止水带、粘贴式止水带、埋入式橡胶止水带、附贴式橡胶止水带。但这几种型式变形缝单一使用效果均不十分理想。
为满足变形缝功能要求,做到密封防水,二次衬砌变形缝可在结构迎水面设置300mm宽背贴式止水带,与防水板不透水连接;在结构背水面缝的端头设置15-20mm深的双组份聚硫橡胶密封膏嵌缝。设置的防水防线应环向交圈,接头严密。
2、施工缝的处理。施工缝宜留在结构受剪力较小且便于施工的部位。施工缝型式通常有平直缝、阶梯缝、凸缝、凹缝四种,也有在缝中预埋遇水膨胀橡胶止水条或膨润土橡胶止水条等的施工方法。
为保证施工缝不渗不漏和易于施工,隧道二次衬砌变形缝的防水处理,可在水平纵向施工缝采用350mm宽的钢边橡胶止水带,环向施工缝设置一道300mm 宽背贴式止水带进行分区处理,所有环向施工缝表面均应凿毛清理并涂刷基面处理剂,基面处理剂可采用单位用量不小于1.2kg/㎡的优质水泥渗透结晶防水材 料或环氧界面剂,其接缝强度须大于混凝土结构自身强度。
【穿墙管的防水处理】
【穿墙管的防水处理】
隧道工程各种穿墙管众多,防水的薄弱部位如果处理不当,则易把地下水引入工程内部。
穿墙管防水做法通常有两种:
1、在穿墙管中间缠绕一圈遇水膨胀橡胶止水条,并在管根部嵌填双组份聚硫橡胶;
2、在穿墙管与墙之间的间隙喷射倍耐聚氨酯发泡填料。聚氨酯发泡填料喷射于间隙后可瞬间发泡,膨胀达45倍。此种做法优于第一种。
【隧道渗漏水的治理方法】
1、化学注浆法。此方法多用于处理三缝及局部集中漏水的部位,应用注浆材料有水泥-水玻璃浆、丙凝、氰凝(聚氨酯浆)、甲凝及环氧树脂等;
2、面层法。主要用于修补衬砌大面积渗水,使用材料有
XPS-H高密度聚乙烯(HDPE)自粘胶膜防水卷材
XPS-CL快速反应粘强力交叉膜自粘卷材
XPS-P高分子自粘胶膜预铺防水卷材
Beina-F聚乙烯丙纶复合防水卷材
3、喷涂放水法。用于整治大面积漏水。
4、特殊堵漏法。主要用于修补混凝土工程中特殊部位的渗漏水,其中包括应用由水泥、水玻璃拌成的塑胶泥、石膏水泥及各种防水剂类的快速堵漏法。在水下堵漏时,常用柔性密封膏和弹性聚氨酯为主的柔性材料等。
声明:本网站发布的内容(图片、视频和文字)以原创、转载和分享网络内容为主,如果涉及侵权请尽快告知,我们将会在第一时间删除。文章观点不代表本网站立场,如需处理请联系客服。电话:158-5106-6698,185-5154-0999;邮箱:[email protected]。

扫描添加好友
免费提供:防水堵漏施工方案

扫描二维码
访问涌达防水堵漏公司手机端
已帮助
21626人
21626人
您的鼓励是作者最大的动力
